Bejáratott apartman, saját vendégkörrel!

25248 Nyomtatás Ajánlás Facebook

Bejáratott apartman, saját vendégkörrel!

Eladásra kínálom Gyula fürdővárosának románvárosi részen, a Várfürdőtől és a belvárostól mindössze 2 perc sétával megközelíthető 70-es években épült és 2001 évben felújított, tégla falazatú 9 szobás családi házat. A házban található összesen 9 szoba, 5 konyha, 6 fürdőszoba és 6 Wc, továbbá egy hatalmas terasz, illetve egy szép parkosított kert, 4 garázs és 4 kocsibeálló is.
Az ingatlan felújítása során új villamoshálózatot, vízvezetékeket és új nyílászárókat kapott.
A parkosított udvaron szép kerti bútorok szolgálják a vendégek kikapcsolódását, ahol egy fedett nyári konyha is kialakításra került.

Az ingatlan lakóterülete: 270 m2.
A telek: 749 m2.
Terasz területe: 10 m2.

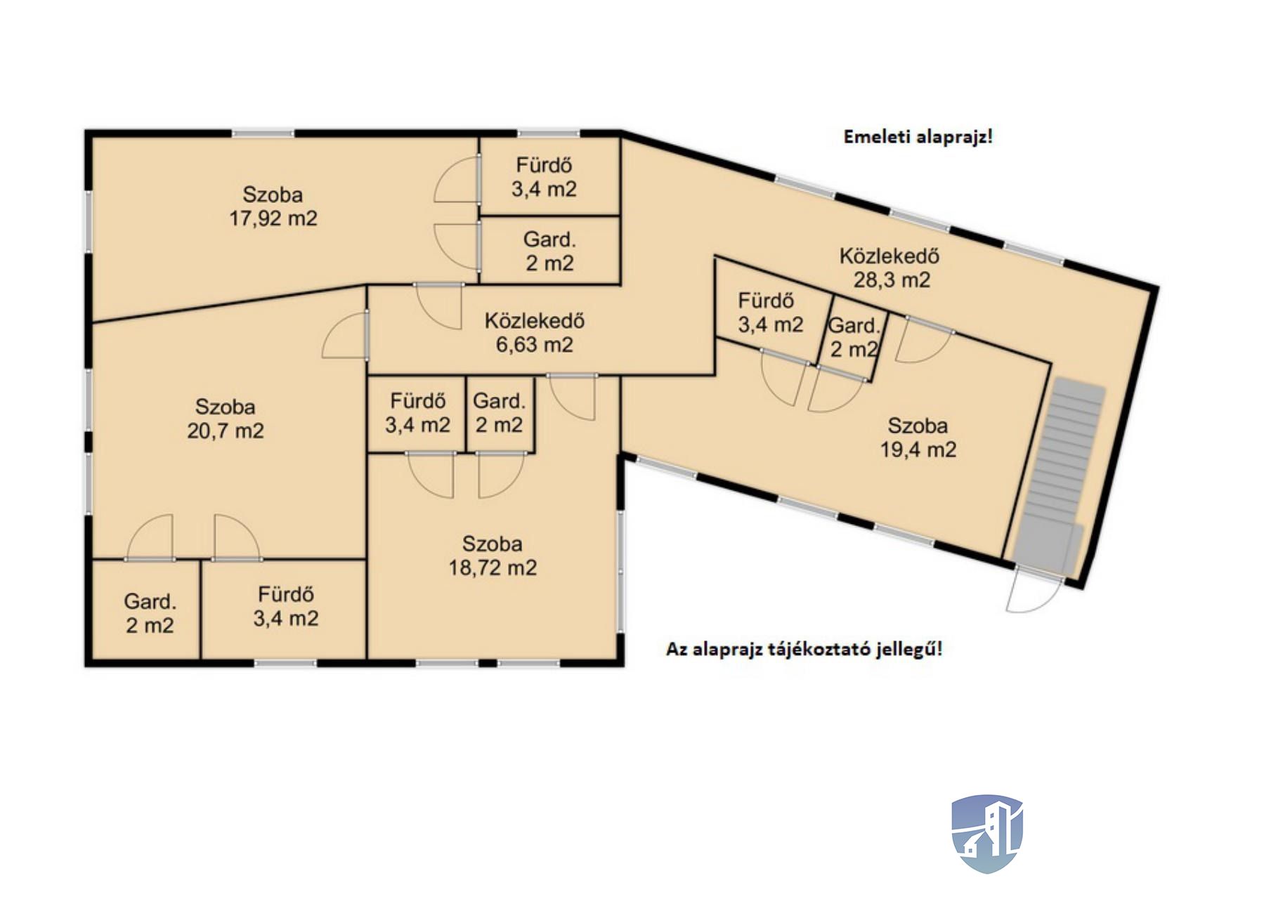
Az épület fűtésről egy újszerű kondenzációs gázkazán és lapradiátorok gondoskodnak, illetve egy dekoratív cserépkályha is bármikor használható igény szerint. Az emeleti részen található 4 db. külön bejáratú apartman, mindegyik külön fürdőszobával és konyha helységgel ellátott, illetve klimatizált.

Amennyiben ez a kiváló helyen lévő, tökéletes elosztású, akár többrétű vállalkozás céljára is alkalmas 9 szobás 270 m2-es ingatlan, akár bútorokkal együtt is felkeltette érdeklődését hívjon bizalommal a +36 70 / 457-4392 telefonszámon.

Szentléleki Tamás
PRÉMIUM

Szentléleki Tamás

6 éve a Városi Ingatlaniroda tagja
Ingatlanértékesítő
Gyula
+36 (70) 457 4392
Észrevétel a hirdetéssel kapcsolatban
Egy ingatlanos naplója