Napfényes családi ház, jó szerkezettel, a Várhoz közel

711 Nyomtatás Ajánlás Facebook

Eladó családi ház Gyula városának kedvelt Újváros városrészében!

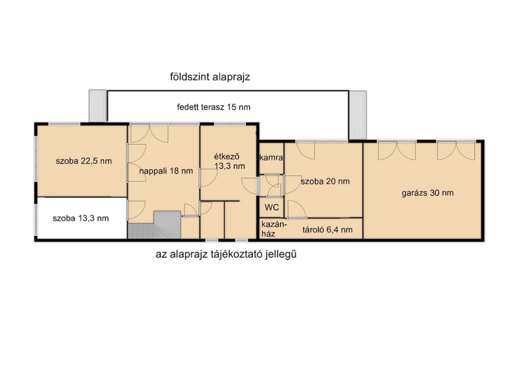
Ez a 150 m²-es lakótérrel rendelkező, átlagos állapotú ingatlan ideális választás mindazok számára, akik csendes környezetben szeretnének élni, ugyanakkor fontos számukra a jó közlekedés. A házban 4 tágas szoba, egy világos nappali, étkezős konyha, kamra valamint 2 fürdőszoba és két különálló mosdó is helyet kapott, így kényelmes otthont biztosít nagyobb családoknak is. Emellett a főépület hátsó szekciójában egy nagy alapterületű a kertből akár külön megközelíthető helyiség is található, mely alkalmas lakhatásra, de akár vállalkozás (körmös, fodrász, műhely stb) céljára is tökéletes.

A ház fűtéséről a főépület földszintjén gázkazánról működtetett radiátorok gondoskodnak, az emeleten és a hátsó részben konvektor fűtés került kialakításra.

A 447 m²-es telek számos lehetőséget kínál a kertészkedés szerelmeseinek, ráadásul fúrt kút is rendelkezésre áll a kert öntözéséhez. A redőnyözött ablakok és a külön fürdő és WC tovább növelik a lakók kényelmét. A házhoz egy hangulatos, déli fekvésű terasz is tartozik, amely tökéletes hely a pihenéshez.

A kertkapcsolatos kialakítás lehetővé teszi, hogy bármikor élvezhesse a friss levegőt és a kert nyugalmát. A garázs lehetőség pedig biztosítja autója biztonságos tárolását. A kertben ezek mellett két könnyűszerkezetes szerszámtároló is található.

Ez a ház tökéletes nagycsaládosoknak, hiszen itt mindenkinek jut elég élettér és Otthon Start programra és CSOK+-ra is alkalmas. Déli fekvésének köszönhetően a nappali és az étkező egésznap fényárban úszik. Nagyon jó lokációjának köszönhetően apartmanozás céljára is megfelelő.

Ne hagyja ki ezt a remek lehetőséget, hogy saját igényei szerint alakítsa ki álmai otthonát Gyula Újváros városrészének egyik csendes utcájában!

További információért és a megtekintés időpontjának egyeztetéséért keressen bennünket bizalommal!

Dr. Folczné Szentléleki Enikő
PRÉMIUM

Dr. Folczné Szentléleki Enikő

Karrierigazgató
Gyula
+36 (20) 392 2660
Észrevétel a hirdetéssel kapcsolatban
Egy ingatlanos naplója